企业介绍 经理致辞 专家指导 企业文化 诚聘人才 为您服务 售前服务 售后服务 | 网上订购 联系我们 ENGLISH
玻璃冰箱
厨房冷柜
小型冰箱
装配冷库
低温深冷
速冻干燥
冰淇淋机
制冰净水
冷饮设备
冷柜配件
装饰材料
海鲜鱼缸
热交换器
聚氨发泡
客户反馈
我们客户
当前页面:首页 > 装配冷库 > 装配冷冻库 > ZPK-6D-CB
名称:装配一体机冷冻库   型号:ZPK-6D-CB
技术参数:
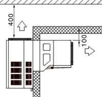
外形尺寸
1950×1950×2200 毫米
(长×宽×高)
可按客户要求尺寸定做
库内尺寸
1800×1800×2100 毫米
库内温度
-18 ~ -10 ℃
库内容积
6 立方米
库体厚度
100毫米
保温发泡密度
42 公斤/立方米
压缩机牌
美国 泰康
制冷剂
R404a
电压
220伏
运转功率
735 瓦
耗电量
8 度/24小时
质量体系和产品认证ISO,CCC,
 
特点:
1. 采用整体高密度发泡,节电。
2. 强制风冷,冷却速度快,库内温度均匀。
3. 电脑自动控制温度、除霜、报警系统,液晶显示库内温度。
4. 内均装有防潮灯灯套保护,安全!
5. 库板可采用压花铝板、不锈钢板、玻璃钢板、彩钢板,
6. 内部立板采用最新设计的波浪型凹凸板,结构牢固。
7. 将蒸发冷凝水用排气管加热蒸发,降低噪音,无需排水管!
8. 可按客户要求,选择推拉门或平掩门、凸掩门。
9. 采用全封闭低噪音压缩机组,可选用水冷机组,节电,静音。
10.配备锁具,便于管理。
11.制冷、电控系统一体机壁挂方便安装,无维护费用。
用途: 冷冻肉制、海产品品及军工、医学试验。
承诺: 所有部件一年内免费维修,压缩机三年免费维修

 

 
地址:天津高新技术园区 邮政编码: 300382 电话: 022-27668493 传真: 022-27668493
网址:www.darli.cn 电子信箱: market@darli.cn 中国大陆各地固定电话售后服务  : 13820377289
达尔利制冷科技有限公司 版 权 所 有 © 2000-2020       津 ICP 备 06000281 号-1 English Version