企业介绍 经理致辞 专家指导 企业文化 诚聘人才 为您服务 售前服务 售后服务 | 网上订购 联系我们 ENGLISH
玻璃冰箱
厨房冷柜
小型冰箱
装配冷库
低温深冷
速冻干燥
冰淇淋机
制冰净水
冷饮设备
冷柜配件
装饰材料
海鲜鱼缸
热交换器
聚氨发泡
客户反馈
我们客户
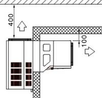
当前页面:首页 > 装配冷库 > 一体制冷、控制机组 > ZTJ-0.37C-FB
名称:制冷、控制一体机组   型号:ZTJ-0.37C-FB
技术参数:
外形尺寸
490×1000×730 毫米
(宽×深×高)
 
洞口尺寸
440×360×100 毫米
配备库温
0 ~ 8 ℃
配备库容
10 立方米
除霜方式
系统内热气
配用压缩机
美国 泰康
制冷剂
R134a
电压
220伏
压缩机功率
370 瓦
风机功率
150 瓦
耗电量
4 度/24小时
质量体系和产品认证ISO,CCC,
 
特点:
1. 采用全封闭低噪音压缩机组,可选用水冷机组,节电,静音。
2. 强制风冷,冷却速度快。
3. 电脑自动控制温度、除霜、报警系统。
4. 具有液晶显示库内温度、设置等功能。
5. 机体外采用彩钢板。
6. 制冷系统无活接头,长期使用无需加制冷剂。
7. 将蒸发冷凝水用排气管加热蒸发,降低噪音,无需排水管!
8. 具有热气除霜功能,节能、安全。
9. 选用内螺纹铜管铝片换热器,换热效率高。
10.制冷系统具有压力保护、过载保护系统,安全。
11.制冷、电控系统一体机壁挂方便安装,无维护费用。
用途: 冷藏库试验室。
承诺: 所有部件一年内免费维修,压缩机三年免费维修

 

 
地址:天津高新技术园区 邮政编码: 300382 电话: 022-27668493 传真: 022-27668493
网址:www.darli.cn 电子信箱: market@darli.cn 中国大陆各地固定电话售后服务  : 13820377289
达尔利制冷科技有限公司 版 权 所 有 © 2000-2020       津 ICP 备 06000281 号-1 English Version